Photos

Appartement St Laurent du Var (06700)

  • 3 pièces
  • 67.00 m²

522400 €

# 1756188

Vente Appartement 3 pièces

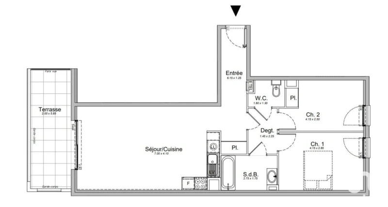
Iad France - Mathieu Condro (06 18 97 27 24) vous propose : 06700 Saint-Laurent-du-Var Surface habitable : 67,25 m² environ Terrasse : 11,70 m² environ Étage : 2e étage (R + 2) Disposition : Séjour / cuisine, 2 chambres avec placards, salle de bain, WC séparé Situé dans une résidence récente et sécurisée, ce 3 pièces lumineux et fonctionnel vous séduira par ses volumes optimisés et ses prestations modernes. Dès l'entrée, vous découvrirez un vaste séjour / cuisine de 28,20 m² environ, baigné de lumière grâce à son ouverture sur une belle terrasse de 11,70 m² environ, idéale pour vos moments de détente. L'espace nuit est composé de deux chambres spacieuses (11,70 m² environ et 9,60 m² environ) avec rangements, d'une salle de bain élégante, et de WC indépendants. Atouts : Séjour spacieux et lumineux Terrasse agréable et ensoleillée Placards intégrés dans les chambres Prestations modernes et soignées Proche commerces, transports et axes routiers Un Service Exclusif : Accompagnement par une Architecte d'Intérieur Pour vous aider à optimiser l'espace et personnaliser votre intérieur, nous mettons à votre disposition une architecte d'intérieur. Que ce soit pour un projet d'aménagement sur mesure, une optimisation des rangements ou une décoration moderne et élégante, elle vous accompagnera à chaque étape pour faire de cet appartement un lieu unique, parfaitement adapté à votre style de vie. Honoraires d'agence à la charge du vendeur. Bien non soumis au DPE. Les informations sur les risques auxquels ce bien est exposé sont disponibles sur le site Géorisques : www.georisques.gouv.fr. La présente annonce immobilière a été rédigée sous la responsabilité éditoriale de M. Mathieu Condro EI (ID 72418), mandataire indépendant en immobilier (sans détention de fonds), agent commercial de la SAS I@D France immatriculé au RSAC de ANTIBES sous le numéro 920434529, titulaire de la carte de démarchage immobilier pour le compte de la société I@D France SAS. Retrouvez tous nos biens sur notre site internet. www.iadfrance.fr. Informations LOI ALUR : Honoraires charge vendeur. (gedeon_6727_30777375)

Caractéristiques

  • Appartement de 67.00 m²
  • 3 pièces
  • Non connu

Diagnostics énergétiques

Diagnostic de performance énergétique (DPE)
  • A
  • B
  • C
  • D
  • E
  • F
  • G
Indice d'émission de gaz à effet de serre (GES)
  • A
  • B
  • C
  • D
  • E
  • F
  • G

Iad France

Contactez Mathieu Condro

A propos du prix du bien

Comparez votre prêt immobilier avec CreditNeto


Autres recherches

d'autres Vente Appartement St Laurent du Var (06700)