Photos

Local Villejust (91140)

  • 739.00 m²

525000 €

# 1927413

Vente Surface diverse 739 m²

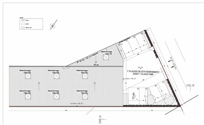
Iad France - Mickael Guerin (06 50 05 97 87) vous propose : TERRAIN A VENDRE A USAGE PROFESSIONNEL - Localisation : ZAC de Courtaboeuf 9, Parc d'activités de l'Océane, 13 bis rue du Mistral, 91140 Villejust. - Surface du terrain : 739 m² environ - Surface constructible autorisée : 500 m² environ de surface de plancher maximum (fiche de lot PC30) - Projet déjà autorisé : Permis de construire accordé pour un entrepôt de 494 m² environ (dont 46 m² environ de bureaux) + 7 places de stationnement. Ce qu'il est possible de construire : - Usage : Activités économiques (entrepôt, bureau, artisanat, industrie légère) - Bâtiment pré-autorisé : - Entrepôt de stockage : 399 m² environ - Bureaux : 46 m² environ - Mezzanine de stockage : 49 m² environ - Stationnement : 7 places (dont 1 PMR) - Architecture : Bâtiment moderne, matériaux de qualité (bardage métal, teintes gris / blanc) Atouts Exclusifs - Permis de construire déjà obtenu : Construction possible immédiatement - Terrain Non Viabilisé : À Raccorder à tous les réseaux (électricité, eau, gaz, assainissement) - Secteur stratégique : Zone d'activité de Courtaboeuf, Paris-Saclay - Environnement professionnel : Parc d'activités entièrement opérationnel Rentabilité locative potentielle : - Surface louable : 494 m² environ - Loyer estimé : - Entrepôt (448 m² environ) : 75 ¤ / m² / an = 33 600 ¤ / an - Bureaux (46 m² environ) : 130 ¤ / m² / an = 6 000 ¤ / an - Revenu locatif annuel total : ? 39 600 ¤ / an POINTS FORTS : - Prix du terrain raisonnable pour la zone Paris-Saclay - Permis de construire déjà accordé (gain de temps considérable) - Projet 'clé en main' avec étude complète réalisée - Secteur en développement avec forte demande locative Bonne opportunité pour : - Un investisseur souhaitant développer un actif logistique - Une entreprise cherchant à s'implanter dans Paris-Saclay - Un projet avec délai de réalisation court (permis déjà obtenu) La plus-value potentielle réside dans la valorisation du bien une fois construit. Valeur vénale estimée à 1,2-1,4 M¤ Information d'affichage énergétique sur le bien associé à cette annonce : DPE NS indice 0 et GES NS indice 0. La présente annonce immobilière a été rédigée sous la responsabilité éditoriale de M. Mickael Guerin (ID 25944), Agent Commercial mandataire en immobilier immatriculé au Registre Spécial des Agents Commerciaux (RSAC) du Tribunal de Commerce de Evry sous le numéro 793887126 Retrouvez tous nos biens sur notre site internet. www.iadfrance.fr. Informations LOI ALUR : Honoraires charge vendeur. (gedeon_6727_32032240)

Caractéristiques

  • Local de 739.00 m²
  • Non connu

Diagnostics énergétiques

Diagnostic de performance énergétique (DPE)
  • A
  • B
  • C
  • D
  • E
  • F
  • G
Indice d'émission de gaz à effet de serre (GES)
  • A
  • B
  • C
  • D
  • E
  • F
  • G

Iad France

Contactez Mickael Guerin

A propos du prix du bien

  • Prix : 525000 €
  • Partage des honoraires : à la charge du vendeur

Autres recherches

d'autres Vente Local Villejust (91140)