Photos

Maison Jonchery sur Vesle (51140) - LES VENTEAUX

  • 7 pièces
  • 4 chambres
  • 145.00 m²

348000 €

# 1577186

Superbe maison de famille dans un environnement calme et verdoyant

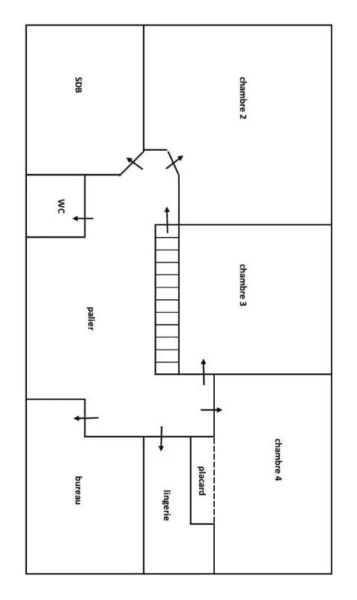
Située à Montigny-sur-Vesle, entre Reims et Fismes, cette maison lumineuse offre un cadre de vie calme et agréable, idéal pour ceux qui cherchent la tranquillité de la campagne tout en restant proches des services. Les écoles, les commerces et la crèche se trouvent à quelques minutes à Jonchery-sur-Vesle, accessible en moins de 5 minutes. Baignée de lumière grâce à son exposition sud-est, la maison s'ouvre sur de beaux espaces extérieurs. Terrasse, balcon et véranda chauffée permettent de profiter du jardin tout au long de l'année. Sur une parcelle de 1 731 m², cette maison de 145 m² dispose de trois places de parking, d'un sous-sol complet et d'une petite dépendance. Les menuiseries double vitrage PVC, le chauffage électrique et la cheminée à bois assurent un bon niveau de confort. Au rez-de-chaussée, vous trouverez un salon, une grande salle à manger ouverte sur le jardin, une cuisine équipée ainsi qu'une chambre avec salle de douche. À l'étage, un vaste palier avec balcon dessert trois chambres avec placards, une salle de bain, une lingerie, un bureau et des toilettes séparées. Une jolie maison pour une famille, à voir rapidement pour apprécier pleinement ses atouts et son environnement. Les informations sur les risques auxquels ce bien est exposé sont disponibles sur le site Géorisques : www.georisques.gouv.fr Prix de vente : 348 000 ¤ Honoraires charge vendeur Contactez votre conseiller SAFTI : Anaïs DE ALMEIDA, Tél. : 06 10 31 73 54, E-mail : [email protected] - EI - Agent commercial immatriculé au RSAC de Reims sous le numéro 917 454 506. Informations LOI ALUR : Honoraires charge vendeur. (gedeon_26118_32336611)

Caractéristiques

  • Maison de 145.00 m²
  • Construit en 1995
  • Terrain de 1731.00 m²
  • 7 pièces
  • 4 chambres
  • 1 balcon
  • Terrasse
  • 2 salles de bain
  • 2 toilettes
  • Radiateur
  • 3 parkings

Diagnostics énergétiques

Diagnostic de performance énergétique (DPE)
  • A
  • B
  • C
  • D 227 kWh/m².an
  • E
  • F
  • G
Indice d'émission de gaz à effet de serre (GES)
  • A
  • B 7 kg CO₂/m².an
  • C
  • D
  • E
  • F
  • G

Safti

Contactez Anaïs DE ALMEIDA

A propos du prix du bien

Comparez votre prêt immobilier avec CreditNeto


Autres recherches

d'autres Vente Maison Jonchery sur Vesle (51140)