Photos

Maison Souvignargues (30250) - Bus

  • 5 pièces
  • 4 chambres
  • 173.00 m²

579000 €

# 13_919A6

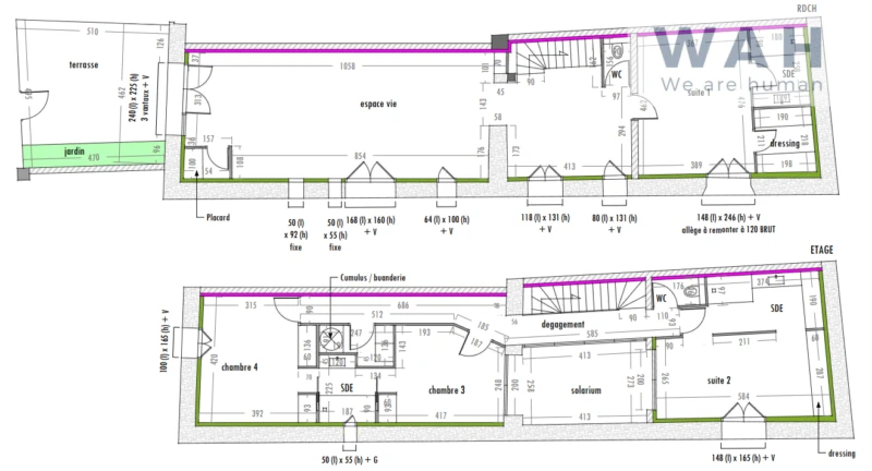
MAISON 5P 173,33 m2 dans RÉSIDENCE de STANDING 30250

-(ouvert inter-agence) Romanella vous propose une MAISON dans une RESIDENCE de STANDING à Souvignargues 30250. Dans un charmant hameau idéallement situé à 7 km au Nord-Est de Sommières, entre Nîmes et Montpellier et à 35 min des plages. Découvrez 'Escattes' la résidence d'exception cloturée et sécurisée offrant un cadre de vie remarquable avec sa piscine au sel chauffée et pool house dans son parc de 1200 m2 arborés, un local à vélo complète la copropriété. La résidence est issue d'un mas intégralement repensé pour votre confort avec ses prestations haut de gamme. A vendre : Maison 5 pièces de 173,33 m2 comprenant en rdc un espace de vie avec cuisine de 58,68 m2, une suite avec salle d'eau et dressing, un wc et un solarium. A l'étage 1 suite avec salle d'eau et dressing, 2 chambres, une salle d'eau ,une buanderie et un wc. Une terrasse et un garage finissent l'ensemble. Chauffage par climatisation reversible en gainable, chauffe-eau thermodynamique, volets bois persiennes 4 vantaux. Les murs de façade sont en pierres apparentes. La maison est vendue hors d'eau hors d'air. Aménagement personnalisé avec des prestations de qualité proposé en sus. Livraison avril 2026. Frais de notaire réduits. Lots disponibles de 130 m2 à 241 m2 habitable dont 1 avec bassin intérieur. Aménagements personnalisés. 'Les informations sur les risques auxquels ce bien est exposé sont disponibles sur le site Géorisques : www.georisques.gouv.fr'. Pour plus de renseignements sur ce bien veuillez contacter votre agent commercial Romanella CHABANON (immatriculé au RSAC de Montpellier No 853 479 780) au 06 02 24 15 02 ou 09 73 28 63 59. - Annonce rédigée et publiée par un Agent Mandataire -

Caractéristiques

  • Maison de 173.00 m²
  • Construit en 1800
  • 5 pièces
  • 4 chambres
  • rez de chaussée / R + 2
  • Terrasse
  • Cuisine ouverte
  • 1 salle de bain
  • 2 salles d'eau
  • 2 toilettes
  • Radiateur
  • 1 parking
  • 1 garage
  • Piscine

Diagnostics énergétiques

Diagnostic de performance énergétique (DPE)
  • A 1 kWh/m².an
  • B
  • C
  • D
  • E
  • F
  • G
Indice d'émission de gaz à effet de serre (GES)
  • A 1 kg CO₂/m².an
  • B
  • C
  • D
  • E
  • F
  • G

WAHUMAN

Contactez Romanella CHABANON

A propos du prix du bien

Comparez votre prêt immobilier avec CreditNeto


Autres recherches

d'autres Prestige Maison Souvignargues (30250)