Photos

Appartement Castelnau le Lez (34170)

  • 3 pièces
  • 93.00 m²

700000 €

# 1964078

Vente Appartement 3 pièces

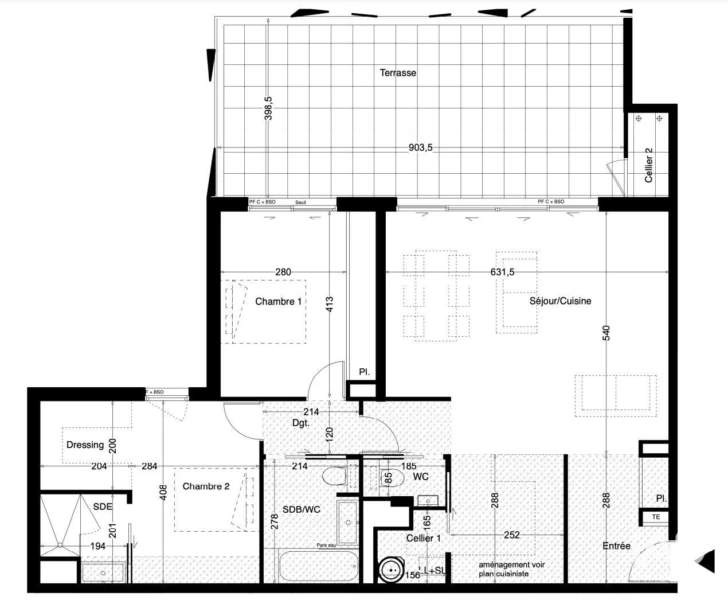
Iad France - Penelope Stoker (06 50 24 86 27) vous propose : Appartement T3 de standing avec terrasse et places de parking au centre de Castelneau-le-Lez Au cOEur de Castelnau-le-Lez, à proximité immédiate des commerces, du tramway et de toutes les commodités, découvrez cet élégant appartement T3 situé au deuxième étage d'une copropriété intimiste. D'une surface habitable de 93 m² environ, cet appartement offre des volumes généreux et une distribution particulièrement fonctionnelle. La pièce de vie, composée d'un séjour avec cuisine ouverte de 41 m² environ, bénéficie d'une belle luminosité et s'ouvre sur une spacieuse terrasse de 37,54 m² environ, véritable prolongement de l'espace de vie. L'espace nuit se compose de deux chambres, dont une suite avec dressing et salle d'eau privative, ainsi qu'une seconde chambre avec rangement. L'appartement dispose également d'une salle de bain avec WC, d'un WC indépendant, d'un cellier et de plusieurs espaces de rangement. Deux places de parking sécurisées complètent ce bien. Situé dans une résidence à taille humaine de seulement neuf lots, cet appartement bénéficie d'un emplacement particulièrement recherché dans le centre de Castelnau-le-Lez, à quelques minutes seulement de Montpellier. Pour plus de renseignements, merci de me contacter. Plans non contractuels. Honoraires d'agence à la charge du vendeur. Bien non soumis au DPE. Les informations sur les risques auxquels ce bien est exposé sont disponibles sur le site Géorisques : www.georisques.gouv.fr. La présente annonce immobilière a été rédigée sous la responsabilité éditoriale de Mme Penelope Stoker EI (ID 83102), mandataire indépendant en immobilier (sans détention de fonds), agent commercial de la SAS I@D France immatriculé au RSAC de Paris sous le numéro 930194964, titulaire de la carte de démarchage immobilier pour le compte de la société I@D France SAS. Retrouvez tous nos biens sur notre site internet. www.iadfrance.fr.Informations LOI ALUR : Honoraires charge vendeur. (gedeon_6727_32869079)

Caractéristiques

  • Appartement de 93.00 m²
  • 3 pièces
  • 2ème étage
  • Terrasse
  • Non connu
  • oui
  • 1 parking
  • Digicode
  • Interphone

Diagnostics énergétiques

Diagnostic de performance énergétique (DPE)
  • A
  • B
  • C
  • D
  • E
  • F
  • G
Indice d'émission de gaz à effet de serre (GES)
  • A
  • B
  • C
  • D
  • E
  • F
  • G

Iad France

Contactez Penelope Stoker

A propos du prix du bien

Comparez votre prêt immobilier avec CreditNeto


Autres recherches

d'autres Vente Appartement Castelnau le Lez (34170)