Photos

Appartement Fontenay Aux Roses (92260)

  • 4 pièces
  • 3 chambres
  • 82.00 m²

499000 €

# 1861022

Vente Appartement 4 pièces

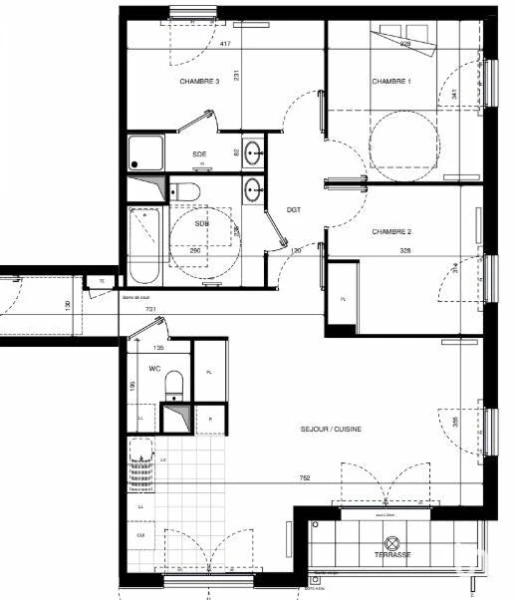
Iad France - Anne-Lucie Blanchetot (06 42 79 48 35) vous propose : T4 au 2ème étage et dernier étage d'une résidence neuve de standing et sécurisée comprenant : 1 entrée, 1 WC séparé, un salon séjour donnant sur balcon exposé sud ouest avec coin cuisine ouvert à aménager et équiper, 1 espace nuit avec 3 chambres dont une avec sa SDE et 1 SDB. Un emplacement parking est compris dans la vente de ce bien neuf, idéalement agencé. À proximité du centre ville de Fontenay-Aux-Roses (10 min à pieds, des écoles primaires (5 min à pieds), du T6 pour Métro Chatillon (7 min à pieds) Sectorisé Lycée Marie Curie à Sceaux NEUF - FRAIS DE NOTAIRE OFFERTS PAR LE VENDEUR La présente annonce immobilière vise 1 lot principal situé dans une copropriété formant 33 lots au total ne faisant l'objet d'aucune procédure en cours et d'un montant de charges d'environ 272 ¤ par mois (soit 3264 ¤ annuel) déclaré par le vendeur. Honoraires d'agence à la charge du vendeur. Information d'affichage énergétique sur ce bien : classe ENERGIE A indice 77 et classe CLIMAT A indice 2. Les informations sur les risques auxquels ce bien est exposé sont disponibles sur le site Géorisques : www.georisques.gouv.fr. La présente annonce immobilière a été rédigée sous la responsabilité éditoriale de Mme Anne-Lucie Blanchetot EI (ID 70024), mandataire indépendant en immobilier (sans détention de fonds), agent commercial de la SAS I@D France immatriculé au RSAC de NANTERRE sous le numéro 915070775, titulaire de la carte de démarchage immobilier pour le compte de la société I@D France SAS. Le présent bien est commercialisé dans le cadre d'une délégation de mandat. Retrouvez tous nos biens sur notre site internet. www.iadfrance.fr. Informations LOI ALUR : Soumis au régime de copropriété. Nombre de lots : 99. Quote part annuelle(moyenne) : 3264 euros. Honoraires charge vendeur. (gedeon_6727_31551119)

Caractéristiques

  • Appartement de 82.00 m²
  • Construit en 2024
  • 4 pièces
  • 3 chambres
  • 2ème étage / R + 2
  • 1 balcon
  • Non connu
  • oui
  • 1 parking
  • Digicode
  • Interphone

Diagnostics énergétiques

Diagnostic de performance énergétique (DPE)
  • A 77 kWh/m².an
  • B
  • C
  • D
  • E
  • F
  • G
Indice d'émission de gaz à effet de serre (GES)
  • A 2 kg CO₂/m².an
  • B
  • C
  • D
  • E
  • F
  • G

Iad France

Contactez Anne-Lucie Blanchetot

A propos du prix du bien

  • Prix : 499000 €
  • Partage des honoraires : à la charge du vendeur

Comparez votre prêt immobilier avec CreditNeto


Autres recherches

d'autres Vente Appartement Fontenay Aux Roses (92260)