






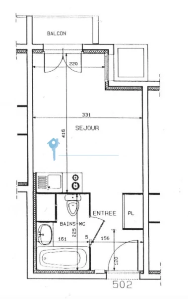
Dépt ISERE(38) - A VENDRE - Studio 1 pièce de 19m2, GRENOBLE
Comptoir Immobilier de France Grenoble : Idéal Investisseur ! Situé à 2 pas du cours Berriat à Grenoble, proche Gare, au 43 Avenue de Vizille, dans un environnement proche de toutes commodités (commerces, écoles, Tram, bus, etc.. ), je vous propose ce studio au 5ème étage avec ascenseur et balcon. Dans un immeuble avec interphone, ce studio offre des avantages intéressants. Entièrement sécurisé avec interphone, il est composé d'une pièce de vie avec un coin cuisine équipé, une salle d'eau avec baignoire et wc, placard de rangement. Venez découvrir rapidement ce studio loué 415eur/mois. Cet emplacement n'est pas soumis à l'encadrement des loyers ! Taxe foncière: 500EUR / Charges de copropriété: 500EUR/an comprenant : Eau froide, ascenseur, les charges communes / DPE : D CIF GRENOBLE GRESIVAUDAN - Lucie RIONDEL 06 08 68 19 99 Cette annonce vous est proposée par Mme. Lucie RIONDEL - EI - NoRSAC: 889 131 611, Enregistré au Greffe du tribunal de commerce de GRENOBLE COMPTOIR IMMOBILIER DE FRANCE - Plus d'informations sur cif-immo.com - « Les informations sur les risques auxquels ce bien est exposé sont disponibles sur le site Géorisques : www.georisques.gouv.fr »
Caractéristiques
- Appartement de 19.00 m²
- Construit en 1989
- studio
- 5ème étage / R + 6
- Kitchenette équipée
- 1 salle de bain
- 1 toilette
- Radiateur électrique
- Orienté ouest
Diagnostics énergétiques
- A
- B
- C
- D 275 kWh/m².an
- E
- F
- G
- A
- B 8 kg CO₂/m².an
- C
- D
- E
- F
- G
Comptoir Immobilier de France
- 176 Rue du Puech, Vergèze (30310)
- 06 18 79 24 41
- https://www.cif-immo.com/
Contactez RIONDEL Lucie
A propos du prix du bien
- Prix : 70000 €
- Partage des honoraires : à la charge du vendeur
- Prix du bien hors honoraires : 70000 €
- Barème des honoraires de l'agence