Photos

Appartement Nimes (30000)

  • 2 pièces
  • 1 chambre
  • 34.10 m²

110000 €

# 0831

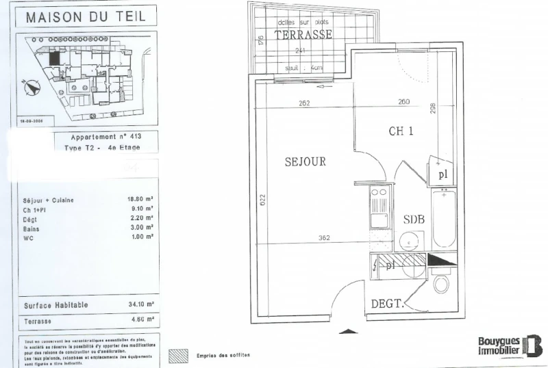
NIMES- APPARTEMENT T2 34,10 INVESTISSEURS

NIMES-Dans une résidence MAISON DU TEIL située à proximité de la « Ville Active » et des accès autoroute . Appartement de type T2 de 34,10 situé au 4 eme étage comprenant un séjour avec cuisine américaine donnant sur une belle terrasse de 4m2, une chambre , une salle de bains et un wc séparé.Ainsi qu'un emplacement de parking privatif. Actuellement loué 457EUR +58EUR soit 515EUR charges comprises - bien soumis à une convention PLS jusqu'en juin 2028 Pour tous renseignements complementaires ou visite veuillez contacter : Martine ABAD 0623148449

Caractéristiques

  • Appartement de 34.10 m²
  • 2 pièces
  • 1 chambre
  • 4ème étage
  • Terrasse
  • Cuisine ouverte
  • 1 salle de bain
  • 1 toilette
  • Radiateur électrique
  • 1 parking

Diagnostics énergétiques

Diagnostic de performance énergétique non fourni.
Indice d'émission de gaz à effet de serre (GES)
  • A 0 kg CO₂/m².an
  • B
  • C
  • D
  • E
  • F
  • G

Amj Immo

Contactez AMJ IMMO

A propos du prix du bien

Comparez votre prêt immobilier avec CreditNeto


Autres recherches

d'autres Vente Appartement Nimes (30000)